Kerrostalo, 36,5 m2
2h, kt, ph/wc, lasitettu parveke
212 000,00 €
map Mustanlahdenkatu 21, 33210 Tampere
my_location Katso sijainti kartalla
Sovi esittely, kohdetta välittää:
- Toni Kaitasuo
- Toimitusjohtaja, yrittäjä, LKV, LVV, KTM, ekonomi
- mail_outlineLähetä sähköpostia
- smartphoneSoita 040 527 9104
Sovi esittely, kohdetta välittää:
- Toni Kaitasuo
- Toimitusjohtaja, yrittäjä, LKV, LVV, KTM, ekonomi
- mail_outlineLähetä sähköpostia
- smartphoneSoita 040 527 9104
Mustanlahdenkatu 21, Tampere, Amuri
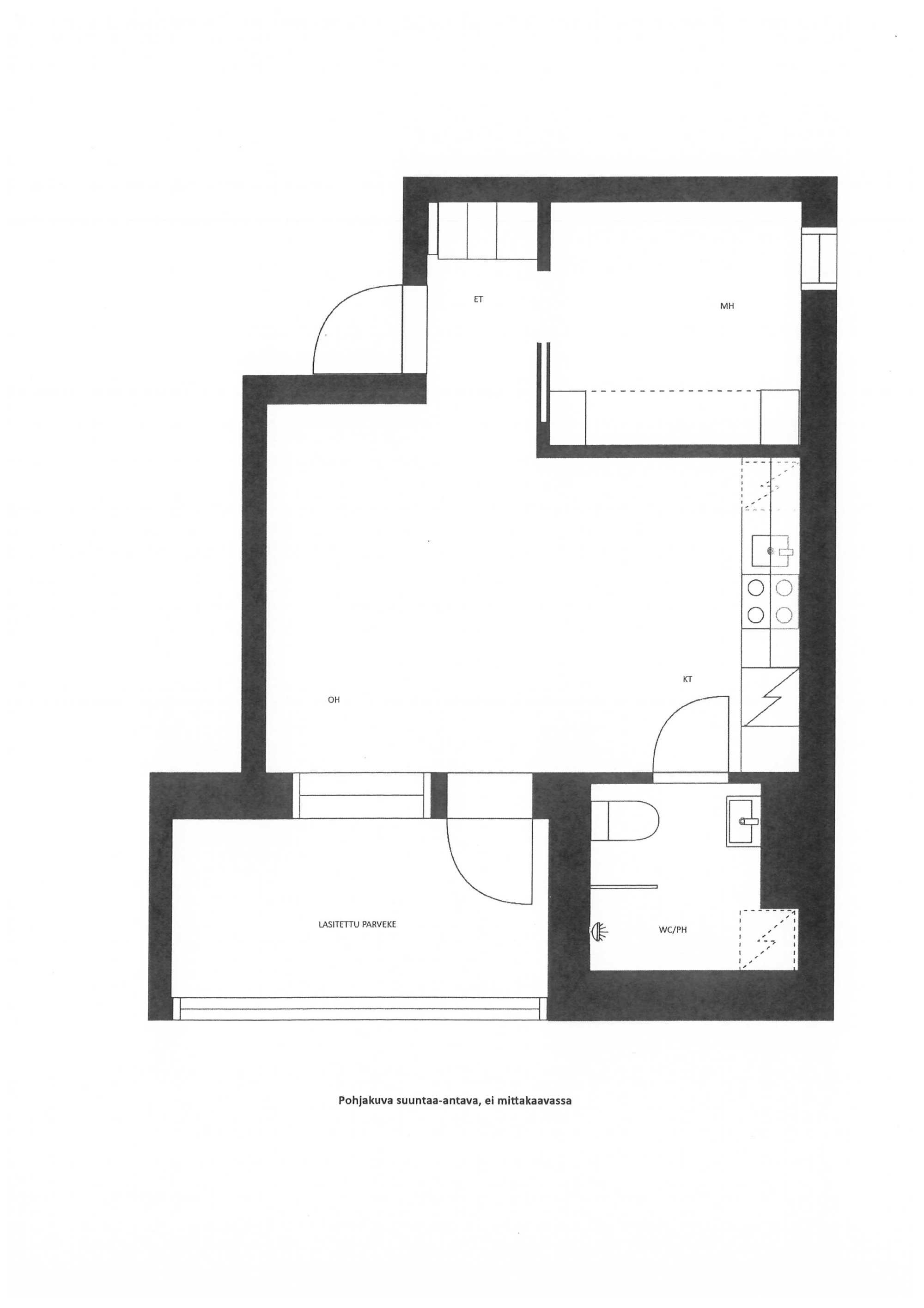
Tämä valoisa ja moderni kaksio sijaitsee Tampereen Amurissa, vain kivenheiton päässä keskustan palveluista. Asunto Oy Tampereen Sonetin vuonna 2023 valmistuneessa talossa on kaikki, mitä tarvitset mukavaan kaupunkiasumiseen. Asunnon iso lasitettu parveke tarjoaa upeat näkymät, ja se on täydellinen paikka rentoutua pitkän päivän päätteeksi.
Asunto sijaitsee toisessa kerroksessa talossa, jossa on hissi. Hyvin suunniteltu pohjaratkaisu ja laadukkaat materiaalit tekevät tästä kodista viihtyisän. Keittiö on varusteltu nykyaikaisilla kodinkoneilla, ja tilavassa ja tyylikkäässä kylpyhuoneessa on tilaa pyykinpesukoneelle. Olohuoneen suurista ikkunoista suorastaan tulvii valoa sisään korostaen tilan avaraa ilmettä.
Liikenneyhteydet ovat erinomaiset, sillä sekä bussi- että raitiovaunupysäkit ovat lähellä. Tämä tekee liikkumisesta sujuvaa ja vaivatonta. Lisäksi alueella on monipuoliset palvelut, mikä tekee arjesta helppoa ja mukavaa.
Tartu tilaisuuteen ja tule tutustumaan tähän upeaan kotiin!
Asunto vuokrattu. Vuokra on 850 €/kk+vesi.
Myynti ja lisätiedot:
Toni Kaitasuo LKV
toni.kaitasuo@arvohuoneistot.fi
0405279104
www.arvohuoneistot.fi
Asunto sijaitsee toisessa kerroksessa talossa, jossa on hissi. Hyvin suunniteltu pohjaratkaisu ja laadukkaat materiaalit tekevät tästä kodista viihtyisän. Keittiö on varusteltu nykyaikaisilla kodinkoneilla, ja tilavassa ja tyylikkäässä kylpyhuoneessa on tilaa pyykinpesukoneelle. Olohuoneen suurista ikkunoista suorastaan tulvii valoa sisään korostaen tilan avaraa ilmettä.
Liikenneyhteydet ovat erinomaiset, sillä sekä bussi- että raitiovaunupysäkit ovat lähellä. Tämä tekee liikkumisesta sujuvaa ja vaivatonta. Lisäksi alueella on monipuoliset palvelut, mikä tekee arjesta helppoa ja mukavaa.
Tartu tilaisuuteen ja tule tutustumaan tähän upeaan kotiin!
Asunto vuokrattu. Vuokra on 850 €/kk+vesi.
Myynti ja lisätiedot:
Toni Kaitasuo LKV
toni.kaitasuo@arvohuoneistot.fi
0405279104
www.arvohuoneistot.fi
Perustiedot
| Kohdenumero | 80464780 |
| Osakkeet | 3496-4121 |
| Sijainti | Tampere, Amuri Mustanlahdenkatu 21 |
| Tyyppi | Kerrostalo |
| Huoneistoselitelmä | 2h, kt, ph/wc, lasitettu parveke |
| Huoneiden lukumäärä | 2 |
| Parveke | Lasitettu |
| Asuinpinta-ala | 36,5 m2 |
| Muut tilat | 0,0 m2 |
| Kokonaispinta-ala | 36,5 m2 |
| Lisätietoja pinta-alasta | Ei tarkistusmitattu. Pinta-ala voi siis olla edellä mainittua pienempi tai suurempi. |
| Pinta-alan peruste | Isännöitsijäntodistuksen mukainen ja yhtiöjärjestyksen mukainen |
| Pinta-ala tarkistusmitattu | Ei |
| Kerros | 2 / 9 |
| Rakennusvuosi | 2023 |
Hinta ja kustannukset
| Velaton hinta | 212 000,00 € |
| Myyntihinta | 44 140,32 € |
| Velkaosuus | 167 859,68 € |
| Rahoitusvastike | 482,02 € / kk |
| Hoitovastike | 313,90 € / kk |
| Yhtiövastike | 795,92 € / kk |
| Vesimaksu | Vesimaksuennakko 21 € / kk / hlö (Ennakko, tasaus kulutuksen mukaan) |
| Lisätietoja maksuista | Yhtiön rakennusaikaisen lainan kokonaiskorko on 3,481 %. Korontarkistuspäivä on vuosittain 31.1. Lainan ensimmäinen maksuohjelman mukainen lyhennys tehdään 31.1.2027. Laina on tasalyhenteinen. Lainan viimeinen maksuerä maksetaan 31.7.2048. Tällä hetkellä pääomavastikkeella kerätään vain koron osuutta. (Ostajan tulee varautua pääomavastikkeen nousuun, kun pääomavastikelainan lyhennyksiä aletaan keräämään). |
Tilat ja materiaalit
| Keittiö | Kaapistot, jääkaappi/pakastin, erillisuuni ja -keraaminen liesitaso, astianpesukone, liesituuletin. Mikroaaltouuni ei kuulu kauppaan. Lattia vinyyliä. |
| Olohuone | Seinät maalattuja, lattia vinyyliä. |
| Makuuhuone | Seinät maalattuja, lattia vinyyliä. |
| Kylpyhuone | Wc/ph: Suihku, wc-istuin, suihkuseinäke, peilikaappi, lavuaari/hana, pesukoneliitäntä. Pyykinpesukone ei kuulu kauppaan. Lattia ja seinät laatoitettu. |
Lisätiedot
| Hissi | 1 |
| Lämmitysjärjestelmä | Kaukolämpö vesikiertoisella lattialämmityksellä |
| Taloyhtiön nimi | Asunto Oy Tampereen Sonetti |
| Tontin omistus | Vuokra |
| Tontin pinta-ala | 1 173,0 m2 |
| Lisätietoja tontista | Vuokratontti. Tontin omistaa Tampereen Evankelis-Luterilainen Seurakuntayhtymä (0206114-9). Asunto Oy Tampereen Sonetti vastaa määräalan vuokrasta yhdessä Asunto Oy Tampereen Oodin kanssa huoneistoalojen mukaisessa suhteessa. Asunto Oy Tampereen Sonetti 1232,0/2746,5m2. Asunto Oy Tampereen Sonetin osuus vuokrasta on ajalla 1.1.-31.12.2025 == 60 728,16€. |
| Taloyhtiöön kuuluu | Väestönsuoja ja ulkoiluvälinevarasto |
| Taloyhtiössä sauna | On |
| Huoneistot taloyhtiössä | 37 kpl |
| Rakennusmateriaali | Teräs/betoni |
| Tehdyt korjaukset ja remontit | Kunnossapitotarveselvityksen mukaan: Ennakkotarkastus, vuositarkastuskorjaukset 2024. |
| Tiedossa olevat tulevat korjaukset/remontit | Kunnossapitotarveselvityksen mukaan: Normaalit huoltotoimenpiteet vuosittain. Parvekelasien pesu 2025. IV-kanavien puhdistus 2029-33. 10 -vuotistarkastus 2032-33. |
| Katto | Tyyppi: Auma Kate: Kermikate |
| Ilmanvaihto | MECHANICAL_VENTILATION |
| Energiatodistus | Kyllä |
| Energialuokka | B2018 |
| Autopaikka | 3kpl, jotka kaikki osakkeina. |
| Ranta | Ei rantaa |
| Kaavoitus | Asemakaava |
| Lisätietoja kaavoituksesta | Tampereen Kaupunki. |
| Muuta tärkeää tietoa | Hallinnanjakosopimus: MML/550988/73/2021 Osapuolet Asunto Oy Tampereen Oodi, 2938432-7 ja Asunto Oy Tampereen Sonetti, 2938429-8. Sopimus 837-105-70-13 alueiden käyttöoikeuksista, joka on allekirjoitettu tontin vuokranantajan ja alueen A (Asunto Oy Tampereen Oodi ja Asunto Oy Tampereen Sonetti) sekä Kiinteistö Oy Tampereen Koppelon ja Asunto Oy Tampereen Metsonkulman kesken. Valtuutettiin hallitus perimään 1-2 ylimääräistä hoitovastiketta taloustilanteen niin vaatiessa. Annettiin hallitukselle myös valtuudet määrittää uusi pääomavastike, jos korkomuutokset/lainaehdot sitä edellyttävät. Taloyhtiössä on laajakaista ja kaapelitelevisio. |
| Viat ja vahingot | Vesivahinko: ei Kosteusvahinko: ei Home-/mikrobi- tai muita sisäilmaongelmia: ei Muita erityisiä ongelmia: ei |
| Isännöitsijä | Asuntopehtoori Isännöinti Oy |
| Kiinteistönhoito | Kiinteistön hoidosta vastaa Huoltoyhtiö |
Palvelut ja liikenneyhteydet
| Palvelut | Keskustan palvelut. |
| Liikenneyhteydet | Bussipysäkki lähellä ja raitiovaunupysäkki lähellä |
infoTäydelliset kohdetiedot saat tilaamalla myyntiesitteen, ota yhteyttä välittäjään.
Sovi esittely, kohdetta välittää:
- Toni Kaitasuo
- Toimitusjohtaja, yrittäjä, LKV, LVV, KTM, ekonomi
- mail_outlineLähetä sähköpostia
- smartphoneSoita 040 527 9104
- Kerrostalo, 36.5 m2
- 2h, kt, ph/wc, lasitettu parveke
- map Mustanlahdenkatu 21, 33210 Tampere
- my_location Katso sijainti kartalla
