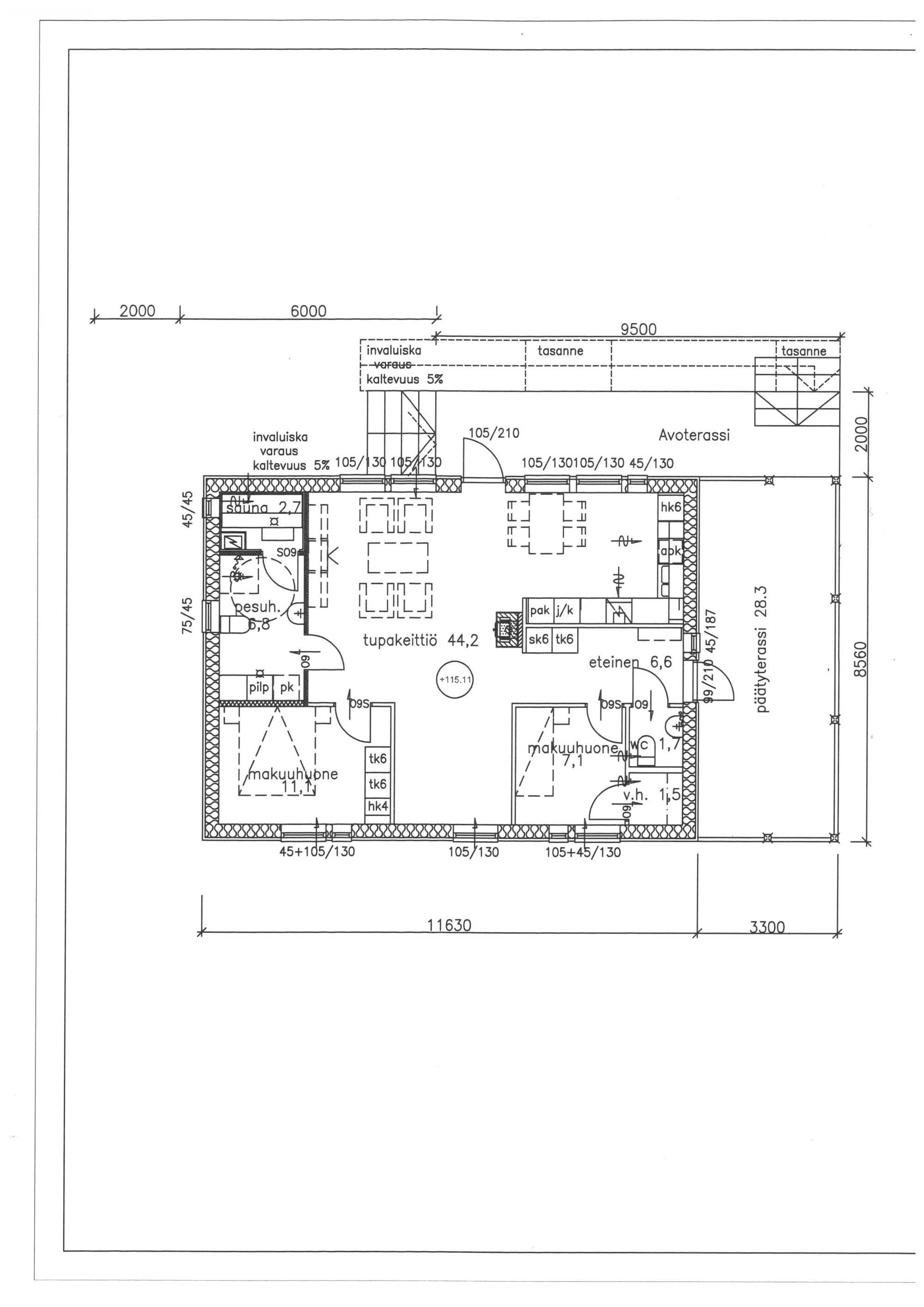
Omakotitalo, 85,0 m2
2mh, tupakeittiö, pesuhuone/wc, sauna, erillinen wc, vh, terassi, kylmä ulkovarasto
288 000,00 €
map Arrankatu 2, 37100 Nokia
my_location Katso sijainti kartalla
Sovi esittely, kohdetta välittää:
- Toni Kaitasuo
- Toimitusjohtaja, yrittäjä, LKV, LVV, KTM, ekonomi
- mail_outlineLähetä sähköpostia
- smartphoneSoita 040 527 9104
Sovi esittely, kohdetta välittää:
- Toni Kaitasuo
- Toimitusjohtaja, yrittäjä, LKV, LVV, KTM, ekonomi
- mail_outlineLähetä sähköpostia
- smartphoneSoita 040 527 9104
Arrankatu 2, Nokia, Asemantaka
Löydä seuraava kotisi Nokian sydämestä, alueelta, jossa moderni ja viihtyisä omakotitalo odottaa asukkaitaan. Tämä uusi talo tarjoaa 85 neliömetriä tyylikästä ja valoisaa asuintilaa, johon kuuluu kaksi makuuhuonetta, avara tupakeittiö, erillinen wc, tilava pesuhuone/wc, ikkunallinen sauna sekä vaatehuone. Lisäksi löytyy erillinen kylmä ulkovarasto säilytystarpeisiin.
Tämän kodin sydän on ehdottomasti sen tupakeittiö, joka on varustettu moderneilla ja laadukkailla kodinkoneilla. Tupakeittiön jatkeena on monikäyttöinen "lisätila", josta loihdit vaikkapa liukulasiseinän asentamalla upean ja monikäyttöisen työtilan! Tupakeittiössä näyttävä tulisija talvi-iltojen tunnelmointiin. Lisäksi talo on suunniteltu huomioiden valon merkitys – suuret ikkunat takaavat, että koti on aina täynnä luonnonvaloa.
Energiatehokkuus on otettu huomioon talon suunnittelussa. Lämmitysjärjestelmänä toimii energiatehokas poistoilmalämpöpumppu.
Talon sijainti on ihanteellinen: lähellä sijaitsevat koulu ja päiväkoti sekä Nokian keskustan monipuoliset palvelut. Lisäksi alueelta löytyvät hyvät liikenneyhteydet, joten liikkuminen on vaivatonta niin julkisilla kulkuvälineillä kuin omalla autollakin.
Tämä koti tarjoaa upeat puitteet niin arkeen kuin juhlaankin. Se on suunniteltu vastaamaan nykyaikaisen perheen tarpeita, yhdistäen toimivuuden, viihtyisyyden ja energiatehokkuuden. Älä jätä tätä tilaisuutta käyttämättä – ota askel kohti unelmiesi kotia Nokialla.
Myynti ja lisätiedot:
Toni Kaitasuo LKV, LVV, KTM, ekonomi
toni.kaitasuo@arvohuoneistot.fi
040-5279104
www.arvohuoneistot.fi
Tämän kodin sydän on ehdottomasti sen tupakeittiö, joka on varustettu moderneilla ja laadukkailla kodinkoneilla. Tupakeittiön jatkeena on monikäyttöinen "lisätila", josta loihdit vaikkapa liukulasiseinän asentamalla upean ja monikäyttöisen työtilan! Tupakeittiössä näyttävä tulisija talvi-iltojen tunnelmointiin. Lisäksi talo on suunniteltu huomioiden valon merkitys – suuret ikkunat takaavat, että koti on aina täynnä luonnonvaloa.
Energiatehokkuus on otettu huomioon talon suunnittelussa. Lämmitysjärjestelmänä toimii energiatehokas poistoilmalämpöpumppu.
Talon sijainti on ihanteellinen: lähellä sijaitsevat koulu ja päiväkoti sekä Nokian keskustan monipuoliset palvelut. Lisäksi alueelta löytyvät hyvät liikenneyhteydet, joten liikkuminen on vaivatonta niin julkisilla kulkuvälineillä kuin omalla autollakin.
Tämä koti tarjoaa upeat puitteet niin arkeen kuin juhlaankin. Se on suunniteltu vastaamaan nykyaikaisen perheen tarpeita, yhdistäen toimivuuden, viihtyisyyden ja energiatehokkuuden. Älä jätä tätä tilaisuutta käyttämättä – ota askel kohti unelmiesi kotia Nokialla.
Myynti ja lisätiedot:
Toni Kaitasuo LKV, LVV, KTM, ekonomi
toni.kaitasuo@arvohuoneistot.fi
040-5279104
www.arvohuoneistot.fi
Perustiedot
| Kohdenumero | 80467048 |
| Sijainti | Nokia, Asemantaka Arrankatu 2 |
| Tyyppi | Omakotitalo |
| Huoneistoselitelmä | 2mh, tupakeittiö, pesuhuone/wc, sauna, erillinen wc, vh, terassi, kylmä ulkovarasto |
| Huoneiden lukumäärä | 3 |
| Takka | Takka. |
| Parveke | Ei parveketta |
| Asuinpinta-ala | 85,0 m2 |
| Muut tilat | 0,0 m2 |
| Lisätietoja pinta-alasta | Rakennuslupadokumenttien mukaan asuinrakennuksen huoneistoala on noin 85 m2 ja kerrosala on noin 100 m2 ja kerrosala 250mm on noin 94 m2. Kylmän varastorakennuksen kerrosala on noin 7 m2. Pinta-aloja ei ole tarkastusmitattu. Kauppahinta ei ole pinta-alaperusteinen. |
| Pinta-ala tarkistusmitattu | Ei |
| Kerros | 1 / 1 |
| Rakennusvuosi | 2025 |
Hinta ja kustannukset
| Velaton hinta | 288 000,00 € |
| Myyntihinta | 288 000,00 € |
| Lisätietoja maksuista | Varainsiirtovero 3%. Sähkön kulutus. Energiatodistuksen mukainen energian nettotarve on noin 11546 kwh/vuosi. Jätemaksut jätelaitoksen taksojen/roskien tyhjennyskertojen mukaan. Vesimaksut vesilaitoksen taksojen/kulutuksen mukaan. Kiinteistövero on ollut vuonna 2025 noin 354,53 € (kiinteistövero saattaa tästä vielä nousta). Hulevesimaksut kaupungin taksojen mukaan. Polttopuut. Nuohous. |
Tilat ja materiaalit
| Keittiö | Kaapistot, liesituuletin, astianpesukone, jääkaappi/pakastin, induktio keittotaso, erillisuuni, integroitu mikroaaltouuni. Keittiön lattia laminaattia. Työtasojen taustat pääosin välitilan levyä. Seinät pääosin tapettia. |
| Olohuone | Lattia laminaattia ja seinät pääosin tapettia. |
| Makuuhuone | Makuuhuoneiden ja eteisen lattiat laminaattia ja seinät pääosin tapettia. |
| Kylpyhuone | Suihku, wc-istuin, pesuallas/hana, pesukoneliitäntä. Lattia muovimattoa ja seinät kostean tilan levyä. (Pesuhuoneessa on sähkötoiminen mukavuuslattialämmitys). |
| Erillinen WC | Erillisen wc:n lattiat muovimattoa ja seinät levyä. Wc-istuin ja pesuallas/hana. |
| Saunan kuvaus | Saunan lattia muovimattoa ja seinät paneloitu, sähkökiuas, lasiovi, ikkuna. |
Lisätiedot
| Lämmitysjärjestelmä | Poistoilmalämpöpumppu |
| Kiinteistötunnus | 536-4-211-4 |
| Tontin omistus | Oma |
| Tontin pinta-ala | 536,0 m2 |
| Rakennusmateriaali | Puu |
| Katto | Tyyppi: Harjakatto Kate: Pelti |
| Viemäri | Kunnallinen viemäri |
| Ilmanvaihto | Muu |
| Energiatodistus | Kyllä |
| Energialuokka | B2018 |
| Kaavoitus | Asemakaava |
| Viat ja vahingot | Vesivahinko: ei Kosteusvahinko: ei Home-/mikrobi- tai muita sisäilmaongelmia: ei Muita erityisiä ongelmia: ei |
Palvelut ja liikenneyhteydet
| Palvelut | Nokian keskustan palvelut. |
| Koulut | Alhoniityn koulu. |
| Päiväkodit | Alhoniityn päiväkoti. |
infoTäydelliset kohdetiedot saat tilaamalla myyntiesitteen, ota yhteyttä välittäjään.
Sovi esittely, kohdetta välittää:
- Toni Kaitasuo
- Toimitusjohtaja, yrittäjä, LKV, LVV, KTM, ekonomi
- mail_outlineLähetä sähköpostia
- smartphoneSoita 040 527 9104
- Omakotitalo, 85 m2
- 2mh, tupakeittiö, pesuhuone/wc, sauna, erillinen wc, vh, terassi, kylmä ulkovarasto
- map Arrankatu 2, 37100 Nokia
- my_location Katso sijainti kartalla
